マンショングランドパレス平野桜花庵
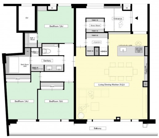
ゆったり134㎡超の広さを要するフルリノベーションのお部屋です。31畳超のLDKの空間が高級感と共に居心地の良さを創り出します。
平野神社のお庭を日常に、春の桜を楽しみに、築25年の風格を纏う邸宅が現代の美意識で新しく生まれ変わります。
小学校へも徒歩5分という羨望の立地です。
物件概要
- 所在地
- 京都市北区平野鳥居前町
- 価格
- 6,480 万円
- 交通
-
京都市営地下鉄烏丸線 北大路駅 バス14分乗車 バス停わら天神前 まで 徒歩5分
京福電鉄北野線 北野白梅町駅 まで 徒歩10分
- 専有面積
- 壁芯 134.12㎡
- バルコニー
-
18.73㎡
(南側)
- 間取り
- 3LDK
- 所在階/階数
- 3階 / 4階
- 築年数
-
2001年
(平成13)
4月
築25年 - 接道状況
- 建ぺい率
- 200%
- 容積率
- 60%
- 土地権利
- 所有権
- 構造および階数
- RC(鉄筋コンクリート) 造 地上4階建
- 総戸数
- 14戸
- 小学校区
- 衣笠 (380m)
- 中学校区
- 衣笠 (930m)
- 地目
- 宅地
- 現況
- 空
- 引渡時期
- 相談
- 駐車場
- 空無
- 駐車場月額
- 14,000〜16,000円/月
- 管理形態
- 全部委託
- 管理方式
- 管理人日勤
- 管理会社
- (株)阪急阪神ハウジングサポート
- 管理費
- 25,500円
- 修繕積立費
- 32,200円
- 上水道
- 公共
- 下水道
- 公共
- ガス
- 都市ガス
- 都市計画
- 市街化区域
- 用途地域
- 2種中高
- 設備・条件
- システムキッチン、食器洗浄乾燥機、洗浄便座、浴室乾燥機、床暖房、ウォークインクローゼット、オートロック、ペット可、エレベーター、宅配BOX
- 備考
-
駐車場:車種制限有、自転車置き場:空き有(500円/月)、バイク置き場:空き無(1000円/月)、ペット飼育規則有
◇フルリノベーション物件2026年7月完成予定◇
各種空状況は2025年11月30日時点 ポーチ:4.25㎡(使用料:700円/月)
- 取引態様
- 仲介
その他周辺物件
この物件は13人の方が興味を持っています。

